A SCULPTURE GARDEN

2012
 

Proposal for the Slovak Pavilion at the Venice Architecture Biennial 2012
Sofie Thorsen & Walter Kräutler

 

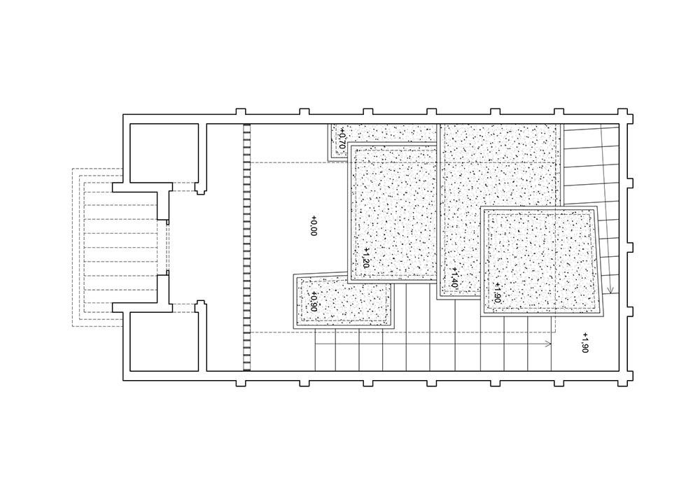
For the Slovakian pavilion in the Giardini, the project proposed a reconstruction of a part of the sculpture garden, which Vladimir Dedeček had planned for the Slovak National Gallery in Bratislava in the late 1960s. Dedeček’s sculpture garden was partly built but never used, and the whole gallery remained a controversial building.
Using elements of the original project, such as the brise-soleil wall and the terraces on which the sculptures would have been placed, we worked with views and limitations of access. We wanted to point to Dedeček’s work as a whole, which was relatively unknown internationally at the time. And we were interested in the qualities of these unused spaces, even as a reconstructed fragment, but also in terms of the limitation of our understanding of what this space could have been and would have meant.

 

Brochure of the project

 

Project proposal
Floorplan